立即搜索
烟台海上世界规划展示中心部分区域招租公告
2022/02/15     

为盘活国有资产,实现保值增值。根据国有资产管理的有关规定和要求,拟对烟台海上世界规划展示中心部分区域实行公开招租,现就有关本次招租的具体事项公告如下:

一、招租资产基本情况

1、项目地点:芝罘区烟台港集团一突堤东南角,四至范围:东南西北均至规划道路。

2、项目概况:烟台海上世界规划展示中心占地面积约12616平方米,建筑面积约4182平方米,地上局部二层;最高高度13.5米,最大跨度19.35米;结构类型为框架结构。


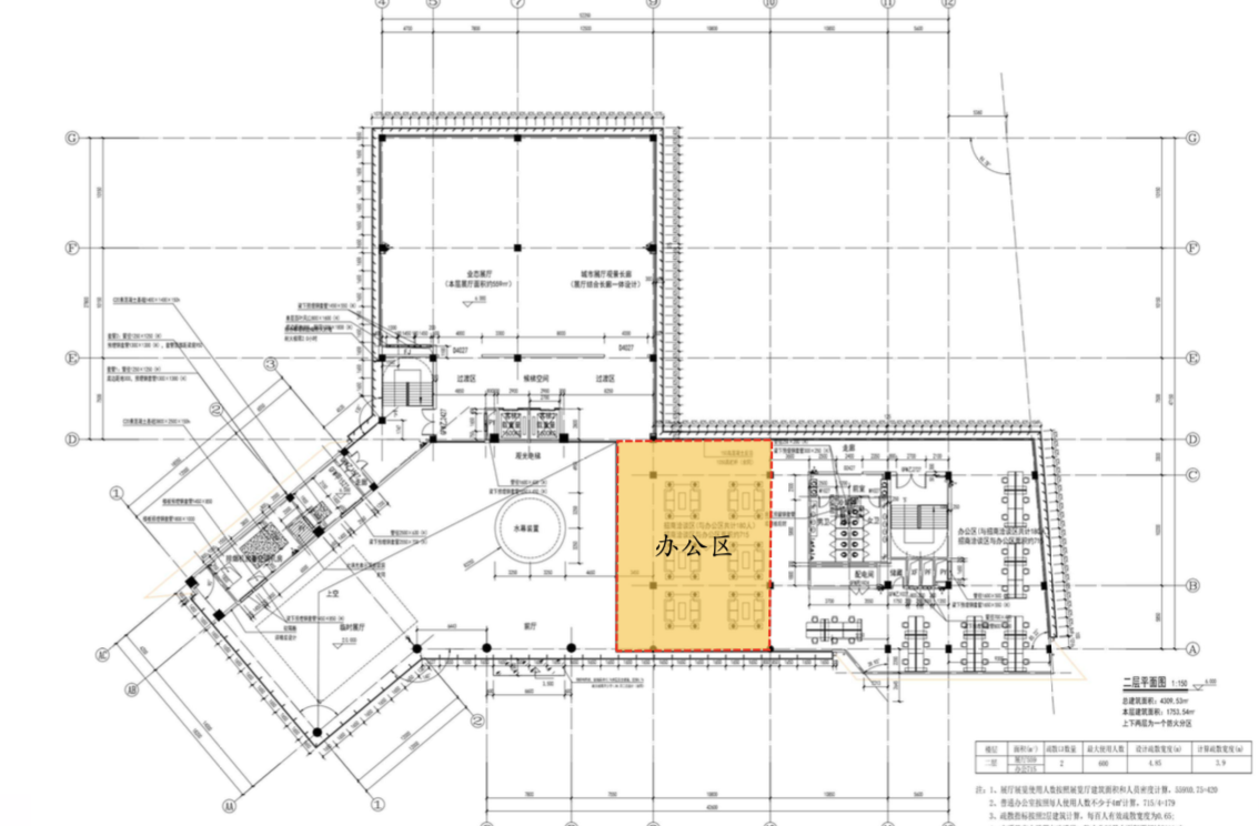
二、招租范围

招租区域(不含公摊区域)位置如下图:


展厅二层招租区域

三、招租方式

公开招租。

四、招租对象

中华人民共和国境内外的法人、自然人或其他组织,除法律另有规定者外,均可参加竞租。

五、租赁要求

1、承租人可对室内租赁区域进行装修改造,但装修的方案、布局、风格需提前报招租人审评同意,且装修改造不得破坏房屋所有设备、系统、管道等,否则由承租人承担维修费用。

2、承租人租赁此房屋仅作为办公使用而不作其他任何用途,除招租方同意外,承租人不得转租承租区域。

3、承租人承担承租区域的水电费,收费标准按照公共事业部门的规定执行。

4、承租人需接受物业管理公司——招商财金物业的统一管理,因承租人原因导致房屋损坏的费用由承租人承担。

5、承租人对承租区域的使用需不影响展厅日常各级观摩活动的开展、各级会议的召开,如遇突发特殊事件承租人需无条件配合招租人安排。

6、承租人负责承租区域自有设备的正常维护、维修。

六、报名方式

凡有意参加招租的单位或个人,须在我公司办理有关报名手续后,方可参加招租活动。单位凭营业执照、法人证明或法人委托书、公章办理;个人凭身份证办理招租报名手续。

七、报名时间

公告之日起至2022年2月19日下午17:00时止。

八、报名地点

烟台市芝罘区海港路23号海上世界展示中心。

九、联系人

林高峰   电话:13385458896

                    

烟台市财金孚泰实业有限公司 

                                                                                            2022年2月15日

  0535-6887256       YTCJ_zhb@ytcjjt.cn
  烟台市莱山区科技大道59号 谈球吧大厦 16-23F
版权所有©谈球吧-(中国)唯一官方网站     鲁ICP备19011097号-2
  0535-6887256    
  ytcjgs@163.com
  烟台市莱山区科技大道59号 谈球吧大厦 16-23F
版权所有©谈球吧-(中国)唯一官方网站
鲁ICP备19011097号-2